2020 Summer Feature Log Home: Hubbard-Rhodes
This promotion has expired.
Announcing our 2020 Summer Feature Log Home: Hubbard-Rhodes!
The Hubbard-Rhodes log home has been one of the most-popular plans since its national debut a few years ago. From curb appeal to a modest footprint, it is easy to see why this home design has become so sought after. ‘Tis why the Hubbard-Rhodes log home is our 2020 Summer Feature Home!
For a limited time only, this red-hot summer must-have features a boatload of style AND savings ($8,010 to be exact). Be the first to check it out…
About the Design
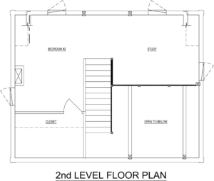
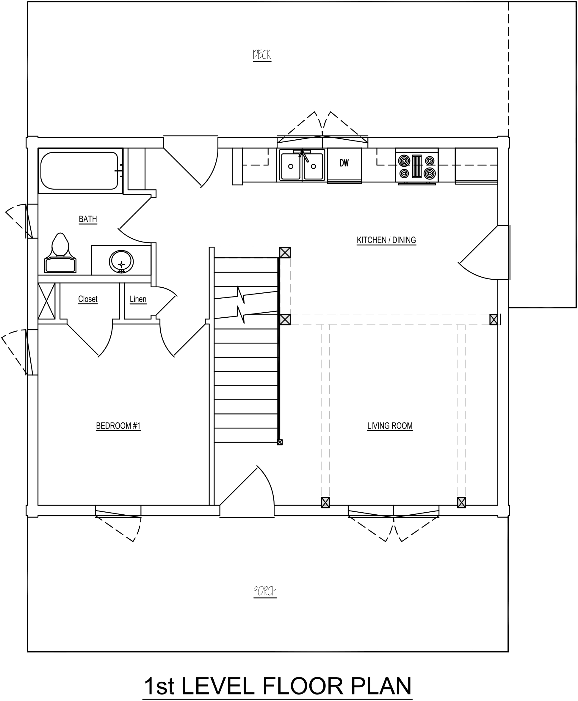
First of all, this versatile log home features 1,024 square feet of living space, 2 bedrooms and 1 bath. A charming front porch and spacious rear deck maximize aesthetics and outdoor entertainment spaces. Inside, a vaulted ceiling makes the living room feel open and comfortable. A centrally located stair system saves spaces and creates a beautiful backdrop in the main living area. A first-floor bedroom and full bath encompass the remaining space. Upstairs you’ll find a study/loft, second bedroom and large walk-in-closet, perfect for everyday or seasonal storage.
For a photo tour of this home, click here.
Summer Feature Log Home: Complete Materials Package
Next, log home packages by Timberhaven include so much more than “just the shell.” In fact, we offer one of the most complete packages in the log and timber home industry. Specifically, this particular package includes:
- 6×8 D premium-grade Eastern White Pine Engineered Logs with Mortise & Tenon corners. There’s no shrinking, no warping, and you won’t find straighter, stronger more refined logs.
- 2×12 cathedral roof system
- Andersen window/door units
- Interior walls
- All insulation
- Tongue & grove ceiling and wall finish
- 30-year architectural shingles
- Exterior preservative
- Plus there’s more….ask your local rep for a detailed materials list.
Red-Hot Summer Savings
So whether you are an empty-nester or looking for a weekend retreat, consider acting now. During July – September 2020, one lucky homeowner will have an opportunity to buy this feature log home package at $8,010 OFF its retail package cost. The Hubbard-Rhodes log home package retails for $82,505 (delivery zone 1); but as part of this limited-time, first-come-first served promotion, we have one log home package at a deeply discounted rate of $74,495 (delivery zone 1). That is a red-hot summer savings of $8,010.
Time is of the essence. This discounted package is available on a first-come, first-served basis. Only one package is available. Deposit must be placed by September 30, 2020, and delivery taken by December 31, 2020. Additional shipping charges and sales tax may apply. Given its popularity, deep discount and narrow window of opportunity, our Summer Feature log home package will not be available for long. Contact your representative for details.















Thank you for sharing this. Perfect design for the wood lovers like me.