Introducing: The Grand Summit Log Home Modern Escape
Grand Summit Log Home Modern Escape: We are thrilled to announce the release of our modern log and timber home designs that are set to redefine luxury, modern living in rustic settings – a Modern Escape. With the evolving preferences of today’s homebuyers in mind, we have meticulously crafted these innovative designs to cater to the needs and desires of a new generation of homeowners.
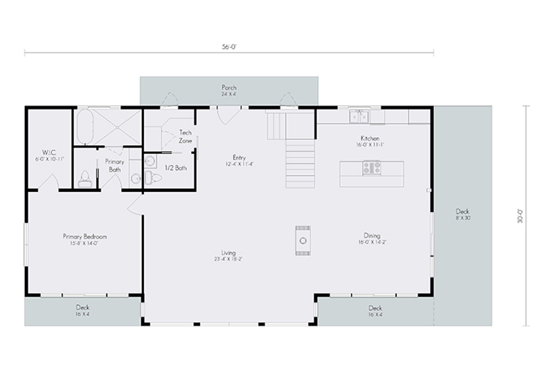
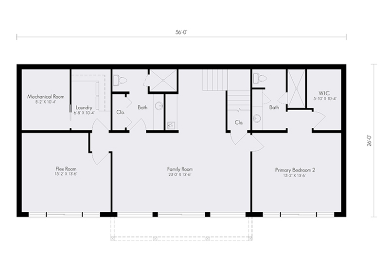
Leading the pack is the Grand Summit Log Home, a stunning 3,008-square-foot log home that epitomizes modern elegance. Boasting a single-level living layout complemented by a finished lower level, the Grand Summit offers the perfect blend of functionality and simplistic sophistication. With its sleek single-sloping shed roof system and expansive walls of glass, this architectural masterpiece is designed to seamlessly integrate with its natural surroundings while offering breathtaking panoramic views.
The Grand Summit features three bedrooms and three-and-a-half baths, ensuring ample space and privacy for both family and guests. Several outdoor living areas extend the log home’s living space, providing perfect spots for relaxation and entertaining. The wide-open living area is anchored by a see-through wood-burning fireplace, creating a cozy ambiance that can be enjoyed from multiple vantage points.
Crafted with Timberhaven’s Premium-Grade Kiln-Dried Engineered Logs, Grand Summit homeowners will appreciate a refined, virtually check-free log product. Plus, the modern trim corner assembly, available with or without a bevel, underscores the log home’s contemporary charm. Every aspect of the Grand Summit is built with name-brand components, ensuring the highest quality and performance.
Our home packages are one of the most complete packages in the industry plus they’re backed by a most complete package guarantee and a lifetime warranty on Timberhaven’s manufactured products. The Grand Summit is not just a home; it’s a modern escape designed to elevate your living experience.
Discover the elegance and innovation of the Grand Summit Log Home. Redefine your concept of luxurious, modern living in a rustic setting with Timberhaven’s newest masterpiece.
In addition to the Grand Summit, the Evergreen ADU and Summit Timber Frame will soon be unveiled. Stay tuned for complete details.














