Cabin/Cottage, Craftsman, Traditional Log Home
Valley View II
Valley View II
2 beds
1 bath
1331 sq ft
Plan Details
- Design Styles: Cabin/Cottage, Craftsman, Traditional
- Construction Type: Log Home
- Area, sq ft: 1331 sq ft
- Bedrooms: 2
- Bathrooms: 1
- Half baths: 0
Description
-
Description:
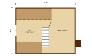
The Valley View II log home design offers 1,331 square feet of total living space. The floor plan features 2 bedrooms and 1 bath. The log home plan provides a large cathedral ceiling that creates a roomy interior, and the kitchen and bedrooms are pleasingly spacious. The Valley View II log home package by Timberhaven Log & Timber Homes also includes a covered front porch that puts the finishing touch to this versatile country charmer.
The Valley View II log home model is illustrated here with our 6×8 D log profile and Dovetail corner assembly.
Related Plans
-
Related Plans:
Valley View I
3 beds2 baths1331 sq ftOops! This page didn't load Google Maps correctly. Please contact admin to fix this.
Request More Information
-
Request More Information:
This is only visible to logged in users
Available on every floorplan page ONLY FOR NON-LOGGED IN USERS to request more information about a floorplan. Sent to TH and LMS.
"*" indicates required fields



