Cabin/Cottage, Craftsman, Traditional Log Home Featured Plan Dealer Features, Featured Plans df1
Valley View I
Valley View I
3 beds
2 baths
1331 sq ft
Plan Details
- Design Styles: Cabin/Cottage, Craftsman, Traditional
- Construction Type: Log Home
- Status: Dealer Features, Featured Plans
- Area, sq ft: 1331 sq ft
- Bedrooms: 3
- Bathrooms: 2
- Half baths: 0
Virtual Tour
- Virtual Tour:
Photo Gallery
-
Gallery:
Description
-
Description:
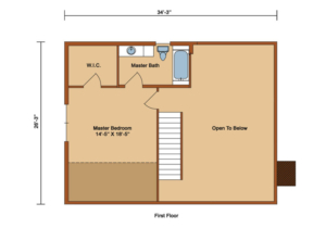
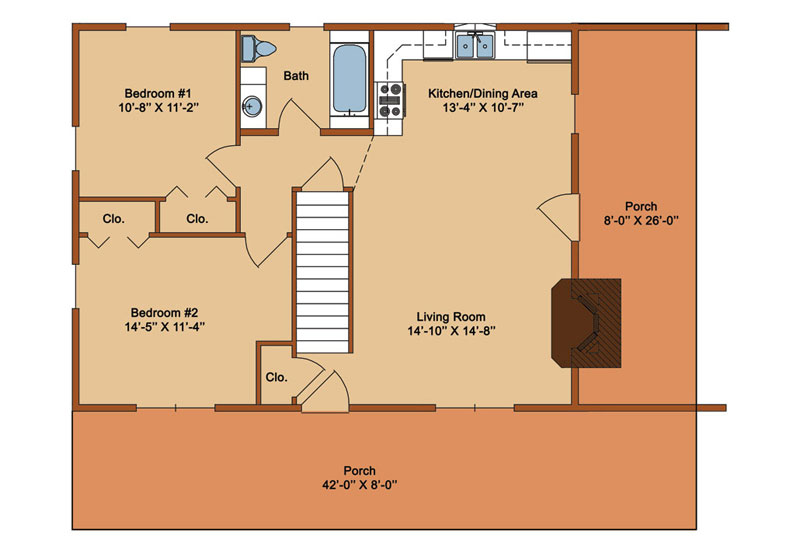
The Valley View I log home design offers 1,331 square feet of total living space. The floor plan features 3 bedrooms and 2 baths. Distinctive styling abounds with this exciting log home plan, and combined kitchen, dining and living area are magnificently accentuated by the open ceiling above. The Valley View I log home package by Timberhaven Log & Timber Homes can be yours today!
Related Plans
-
Related Plans:
Valley View II
2 beds1 bath1331 sq ftOops! This page didn't load Google Maps correctly. Please contact admin to fix this.
Request More Information
-
Request More Information:
This is only visible to logged in users
Available on every floorplan page ONLY FOR NON-LOGGED IN USERS to request more information about a floorplan. Sent to TH and LMS.
"*" indicates required fields



