Tobias Modified Aspen Hill I
Tobias Modified Aspen Hill I
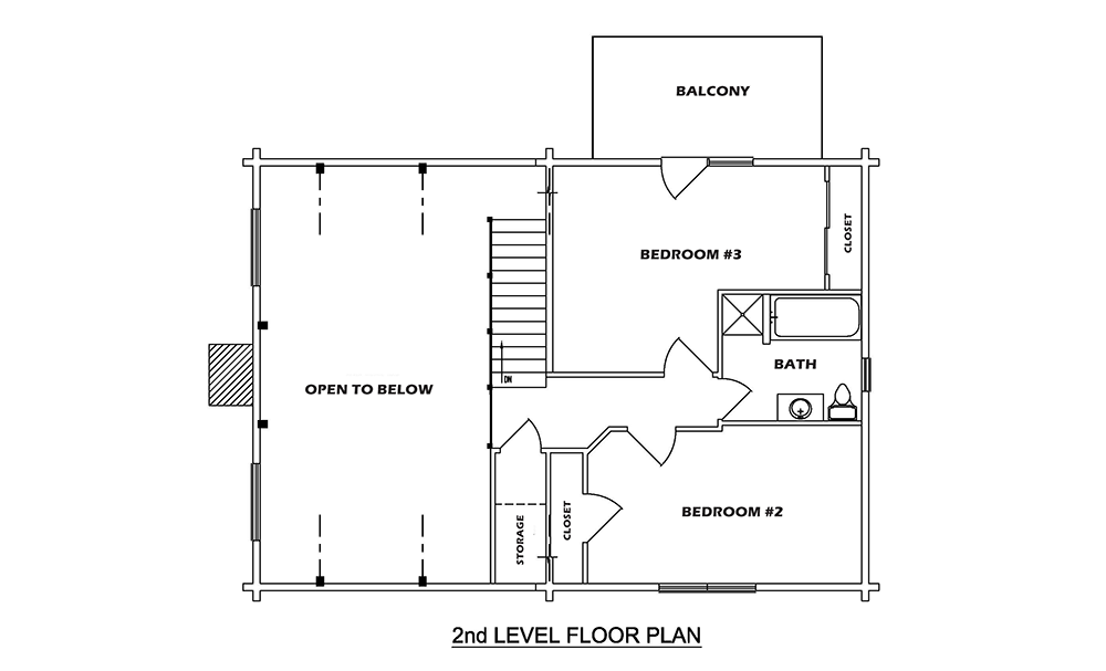
Plan Details
- Design Styles: Cabin/Cottage, Farmhouse, Traditional
- Construction Type: Log Home
- Area, sq ft: 1900 sq ft
- Bedrooms: 3
- Bathrooms: 2
- Half baths: 1
Description
-
Description:
This modified Aspen Hill I features 3 bedrooms, 2 1/2 baths, and is built with Timberhaven's 6x8 kiln-dried Eastern White Pine logs. The logs are shaped into our most-popular D-shaped profile and include Mortise-and-Tenon corners. Plan modifications include:
• Turn one of the upstairs bedrooms into a second master suite
• Expand the decks to take advantage of the pond views
• Modify great room window schematic to include larger pieces of glass
It's easy to see why Log Home Living magazine named this home "Home of the Month." This modified Aspen Hill I log home features an open floor plan, vast picture windows, cathedral ceiling, a first-floor master, and a strong use of natural materials...and colors.
Related Plans
-
Related Plans:
Aspen Hill I
3 beds2 baths1756 sq ftAspen Hill II
3 beds2 baths1992 sq ftAspen Hill FP3, R9, F2, B2
3 beds2 baths1761 sq ftOops! This page didn't load Google Maps correctly. Please contact admin to fix this.
Request More Information
-
Request More Information:
This is only visible to logged in users
Available on every floorplan page ONLY FOR NON-LOGGED IN USERS to request more information about a floorplan. Sent to TH and LMS.
"*" indicates required fields



