Saratoga
Plan Details
- Design Styles: Craftsman, Farmhouse, Traditional
- Construction Type: Hybrid Home, Timber Frame Home/Post & Beam Home
- Status: Featured Plans
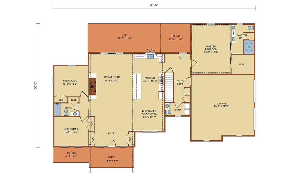
- Area, sq ft: 2370 sq ft
- Bedrooms: 3
- Bathrooms: 2
- Half baths: 1
Description
-
Description:
At a little over 2,300 sq. ft., this 3-bedroom, 2.5-bath Timber Frame masterpiece features an open floor plan that gives you the best of both worlds— a home that is the perfect blend of spacious and cozy. Just off the front porch, the entryway, with ample closet space, leads into the great room, kitchen, and dining area, which opens up to a rear deck that’s perfect for relaxing or entertaining. The adjoining utility area is both functional and convenient, housing a guest bath, as well as entry into both the garage and master suite, which boasts a walk-in closet and private bath. At the opposite end of the home are two bedrooms with a shared bath. Last, but certainly not least, are the plethora of windows that are just perfect for drawing in natural light and soaking up scenic views.
Related Plans
-
Related Plans:
Saratoga
3 beds2 baths2370 sq ftOops! This page didn't load Google Maps correctly. Please contact admin to fix this.
Request More Information
-
Request More Information:
This is only visible to logged in users
Available on every floorplan page ONLY FOR NON-LOGGED IN USERS to request more information about a floorplan. Sent to TH and LMS.
"*" indicates required fields



