Clear Creek
Plan Details
- Design Styles: Cabin/Cottage, Craftsman, Traditional
- Construction Type: Log Home
- Area, sq ft: 1434 sq ft
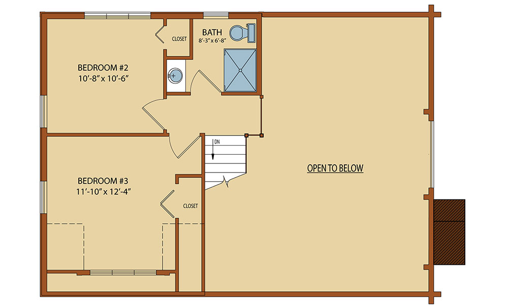
- Bedrooms: 3
- Bathrooms: 3
- Half baths: 0
Description
-
Description:
The Clear Creek log home design offers 1,434 square feet of total living space. The floor plan features 3 bedrooms and 3 baths. The log home plan provides a Grand front entrance with a cathedral porch ceiling and massive King Post Truss. The diamond-shaped window accents the front entrance and provides a source of natural light to the cathedral area and living space within. The Clear Creek log home package by Timberhaven Log & Timber Homes is a show-stopper for sure!
The Clear Creek log home model is illustrated here with our 6×8 D and Mortise & Tenon corner assembly.
Request More Information
-
Request More Information:
This is only visible to logged in users
Available on every floorplan page ONLY FOR NON-LOGGED IN USERS to request more information about a floorplan. Sent to TH and LMS.
"*" indicates required fields


