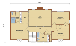
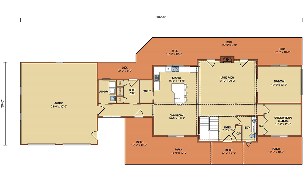
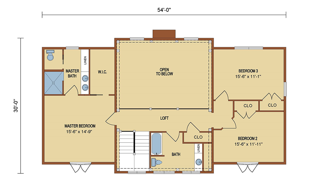
Most Stunning Forever Home
Our timber frame home is built with kiln-dried timbers that were pre-cut and pre-notched so that assembly onsite was seamless. It is amazing to look around and see the mortise and tenon joinery that is holding our house together, solidly and beautifully. The aging process and longevity of these timbers are the most stunning, in addition to abundant natural beauty it provides to our family now and for decades to come.
During the design process, we took our time to think about all scenarios. Perfection takes time, and we didn’t rush it. And we weren’t afraid to make changes. We encourage you to do the same.
As far as material selections, there were plenty of material package choices provided to us. If Timberhaven didn’t have what we were looking for, they easily found it or provided an alternative, similar option. Timberhaven also offered the most competitive pricing for our quality timber frame home package.
Ultimately, we have built our forever home to raise our three sons and could not have chosen a better, more beautiful house to fit our plan. We are more than happy with our Timberhaven timber frame home and look forward to it being part of our lives and future generations to come.


