Freedom
3 beds
2 baths
1712 sq ft
Plan Details
- Design Styles: Craftsman, Farmhouse, Traditional
- Construction Type: Log Home
- Status: Featured Plans
- Area, sq ft: 1712 sq ft
- Bedrooms: 3
- Bathrooms: 2
- Half baths: 1
Description
-
Description:
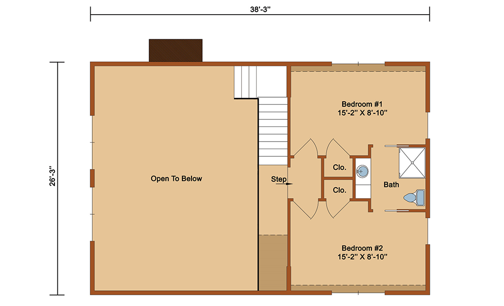
The Freedom log home design offers 1,712 square feet of total living space. The floor plan features 3 bedrooms and 2.5 baths.
Related Plans
-
Related Plans:
Freedom
3 beds2 baths1717 sq ftOops! This page didn't load Google Maps correctly. Please contact admin to fix this.
Request More Information
-
Request More Information:
This is only visible to logged in users
Available on every floorplan page ONLY FOR NON-LOGGED IN USERS to request more information about a floorplan. Sent to TH and LMS.
"*" indicates required fields



