Craftsman, Farmhouse, Traditional Log Home
Chesapeake I
Plan Details
- Design Styles: Craftsman, Farmhouse, Traditional
- Construction Type: Log Home
- Area, sq ft: 2902 sq ft
- Bedrooms: 3
- Bathrooms: 2
- Half baths: 1
Description
-
Description:
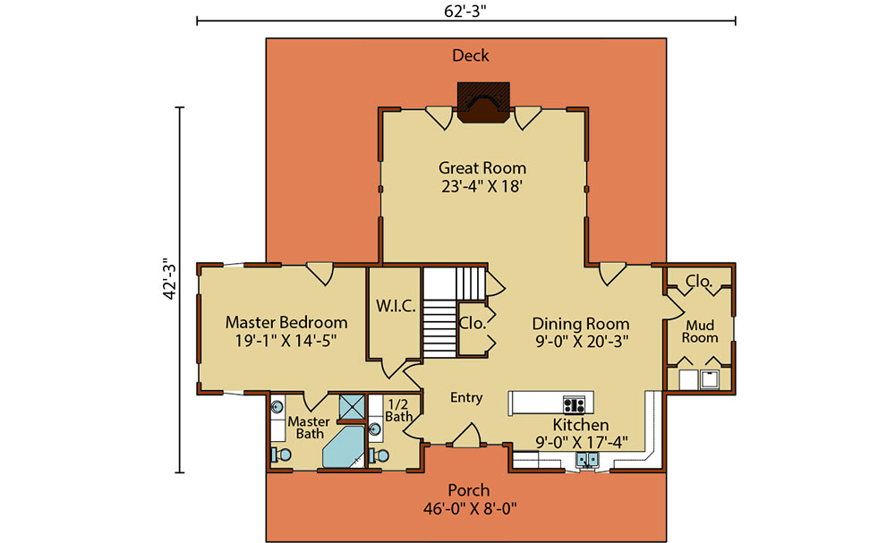
The Chesapeake I log home design offers 2,902 square feet of total living space. The floor plan features 3 bedrooms and 2.5 baths. The log home plan is engineered for comfort and performance and is the ultimate of log home designs. The vast expanse of windows, blue-ribbon entrance, and first-floor master suite can be yours with the Chesapeake I log home package by Timberhaven Log & Timber Homes.
Request More Information
-
Request More Information:
This is only visible to logged in users
Available on every floorplan page ONLY FOR NON-LOGGED IN USERS to request more information about a floorplan. Sent to TH and LMS.
"*" indicates required fields


