Traditional Log Home
Kortze – Log Home Living Feature
Plan Details
- Design Styles: Traditional
- Construction Type: Log Home
- Area, sq ft: 2910 sq ft
- Bedrooms: 3
- Bathrooms: 2
- Half baths: 1
Description
-
Description:
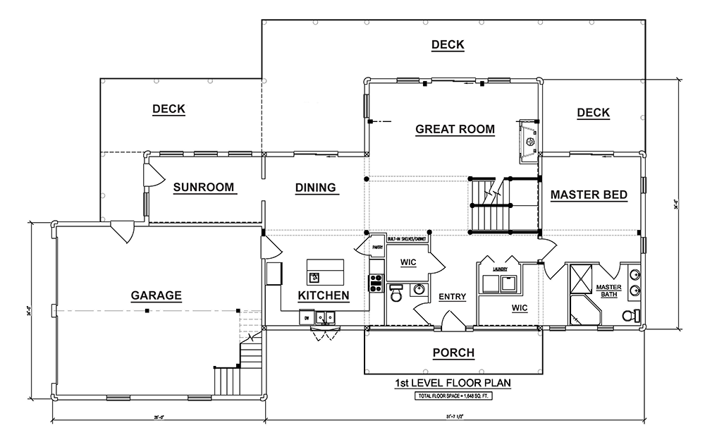
Log Home Living magazine recently featured this 2,910 square foot log home. The decision to include this home in the national publication was easy based on its extremely good looks and versatile floor plan.
Request More Information
-
Request More Information:
This is only visible to logged in users
Available on every floorplan page ONLY FOR NON-LOGGED IN USERS to request more information about a floorplan. Sent to TH and LMS.
"*" indicates required fields


