Davis Custom Timber Frame
Davis Custom Timber Frame
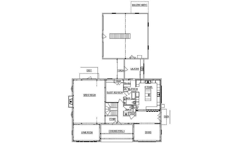
Plan Details
- Design Styles: Craftsman
- Construction Type: Hybrid Home, Timber Frame Home/Post & Beam Home
- Area, sq ft: 4375 sq ft
- Bedrooms: 2
- Bathrooms: 2
- Half baths: 1
Description
-
Description:
Award Winning Plan
Nestled amidst the natural splendor of a pristine landscape, this one-of-a-kind luxurious custom timber frame home stands as a testament to unparalleled craftsmanship and opulence. Crafted with meticulous attention to detail, the residence boasts a unique design that seamlessly blends traditional elegance with modern comfort. The timber frame structure, a masterpiece of architectural ingenuity, showcases the use of premium materials of Kiln-Dried Engineered White Pine. This choice not only enhances the home's aesthetic appeal with its warm and inviting tones but also ensures durability and stability. Every inch of this extraordinary abode exudes a sense of luxury, from the grand timber beams to the intricately designed interiors, creating an ambiance of timeless sophistication. With its commitment to quality, this custom timber frame home redefines the concept of bespoke living, offering a haven where natural beauty harmoniously merges with refined living spaces.
Request More Information
-
Request More Information:
This is only visible to logged in users
Available on every floorplan page ONLY FOR NON-LOGGED IN USERS to request more information about a floorplan. Sent to TH and LMS.
"*" indicates required fields


