Bryson – Hendrie
Plan Details
- Design Styles: Cabin/Cottage, Traditional
- Construction Type: Log Home
- Area, sq ft: 1985 sq ft
- Bedrooms: 3
- Bathrooms: 2
Description
-
Description:
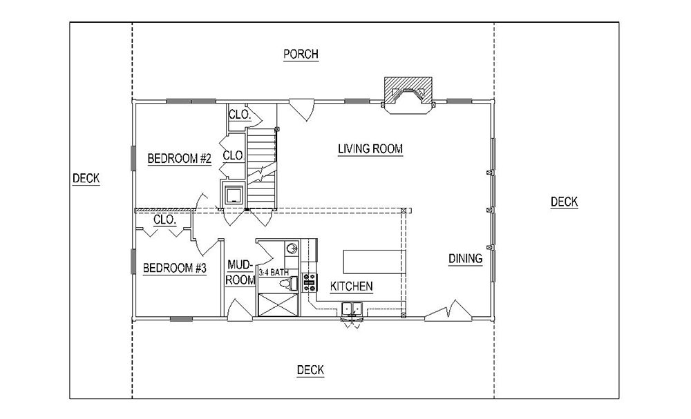
Every detail of this beautiful custom log home is crafted to provide both comfort and aesthetic appeal, making it the perfect retreat for those who appreciate quality and beauty in their living space. Built with premium-grade products including Timberhaven’s 6x12 Dutch Lap Engineered Logs with Dovetail corner assembly, this 1,985 sq ft home offers 3 bedrooms and 2 baths. A customized version of our standard Keystone design, this log home features a stunning wall of glass and a full wrap-around porch. This beautiful residence boasts a spacious yet convenient living area, along with a charming master bedroom suite on the second level.
Request More Information
-
Request More Information:
This is only visible to logged in users
Available on every floorplan page ONLY FOR NON-LOGGED IN USERS to request more information about a floorplan. Sent to TH and LMS.
"*" indicates required fields


